About Us

Our work strives to enhance our sense of surroundings, identity and relationship to others and the physical spaces we inhabit, whether feral or human-made.

Selected Awards
  • 2004 — Aga Khan Award for Architecture
  • 2009 — Mies van der Rohe Award
  • 2013 — AIA/ALA Library Building Award
  • 2015 — Best Interior, Designers Saturday
  • 2016 — AIA New York Honor Award

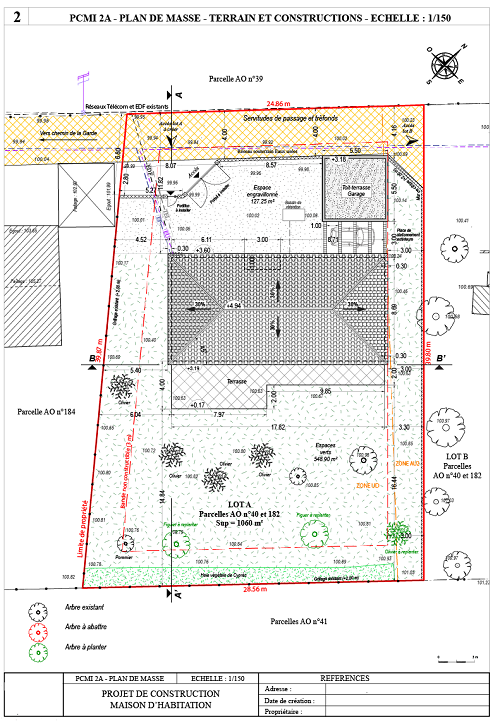
Plan de situation ( PCMI 01 ou DP 01)

59.0099.00

Le plan de situation permet de localiser précisément votre terrain à l’intérieur de la commune afin de connaitre quelles règles d’urbanisme s’appliquent dans la zone où est situé votre projet. Le plan de situation est donc un élément essentiel pour constituer un dossier de permis de construire ou de déclaration préalable de travaux.

Le plan de situation permet à l’administration de situer votre terrain sur sa commune afin de localiser précisément la zone concernée, notamment dans le cas d’une rénovation, d’une future construction ou d’un projet immobilier.

Il permet également de savoir s’il existe des servitudes. l’instructeur  des autorisations d’urbanisme pourra identifier les règles à appliquer dans le cadre de votre projet, selon le plan local d’urbanisme (PLU) en vigueur.

Il est établi sur un extrait de carte IGN, un plan d’assemblage cadastral (DGI, Bureau F1) ou un plan de ville. L’échelle du plan sera comprise entre le 1/ 2000 (dans un milieu urbain) et 1/ 25000 (dans un milieu rural).

Tarifs (en fonction de votre surface de plancher)

Clear
SKU: N/A Category: Tag:

Description

 l’administration doit pouvoir identifier sur votre plan de situation :

  • La ou les parcelles concernée(s) par le projet indiqué
  • Le numéro de la ou des parcelle(s) concernée(s)
  • Le nom de la route passant devant la parcelle
  • Un indicateur de points cardinaux parfaitement orienté
  • L’échelle des documents

Additional information

Surface de Plancher

Surface comprise 0 à 79 m², Surface comprise 80 à 149 m², Surface comprise 150 à 300 m²